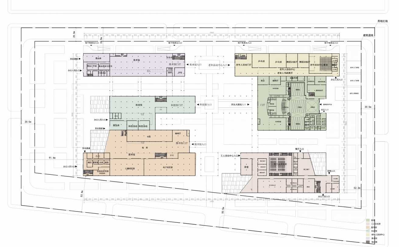
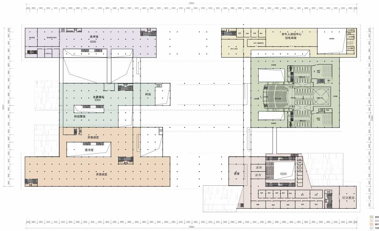
山西文化綜合中心投標方案
rendering
plan
facade
T+E視覺建築/外灘源33號
Precast·Rebuilding
施峥:王澍新作/洞橋鎮文村美麗宜居示范村
嶺南四大名園-廣州/余蔭山房
轉載:DINAJPUR, BANGLADESH JOGEN BABU MAATH SLUM – INFRASTRUCTURE Jogen巴布Maath貧民窟-基礎建設
洞山寺景觀設計方案
重塑達德利/高艷蓉
劉克成工作室/漢陽陵帝陵外藏坑遺址博物館 0168
廣州陳家祠-陳氏書院
南安東田陳公館
奧地利,Schloss Orth/synn建築師事務所
朱家角九間堂西苑
華僑城•天津C2地塊/高艷蓉
村空間
合陽 半宅
泰峰陶瓷藝術館
太湖鎮夏游艇碼頭